高效精细筛分就选平面回转筛 ——【泓博缘机械】
作者:泓博缘机械 时间:2019/8/21 11:10:22次浏览
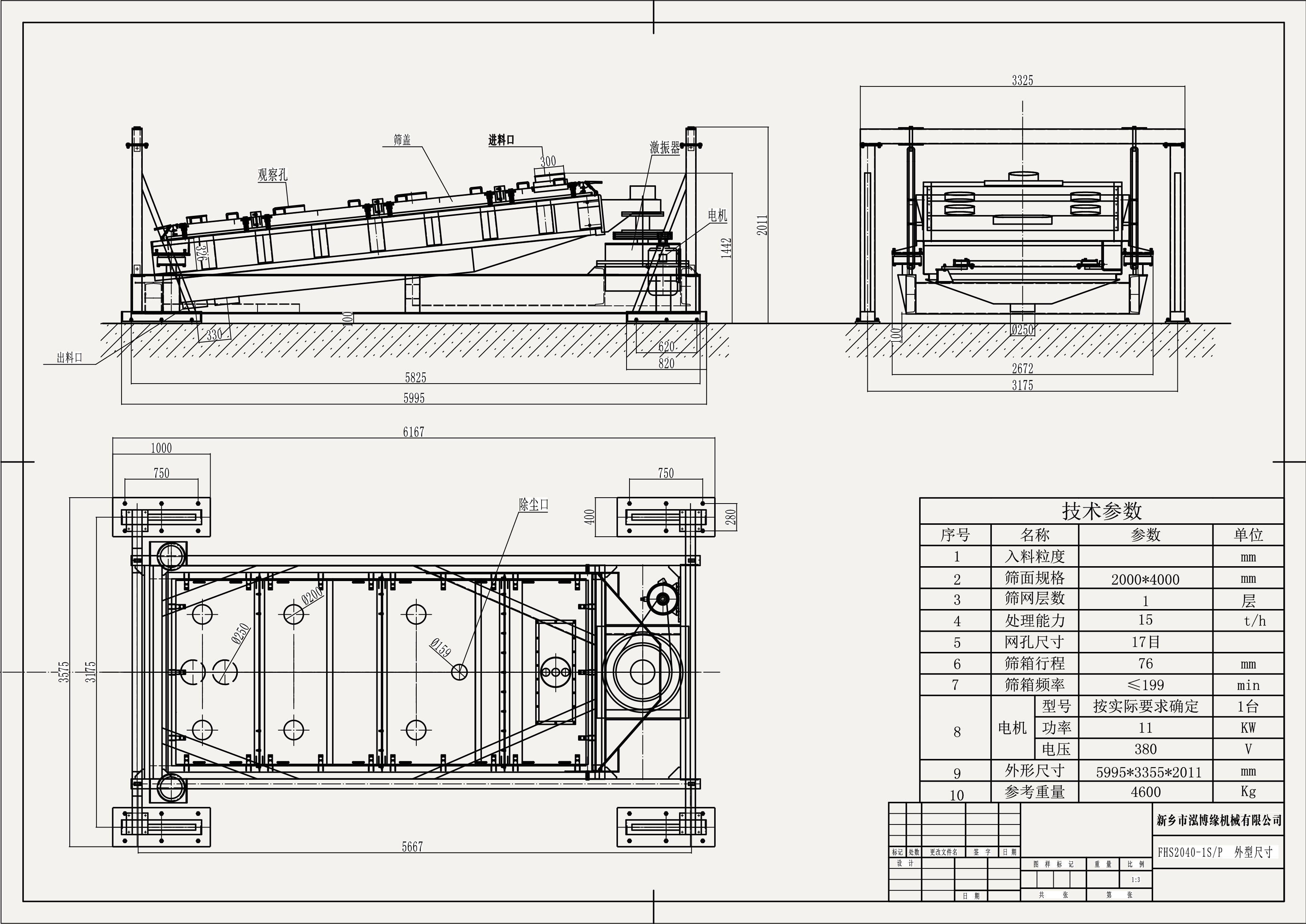
泓博缘是平面筛制作厂家专业制作平面筛、平面往复筛、平面回转筛等。下面泓博缘小编为大家介绍一款平面回转筛,它具有筛分精细,处理量大的特点。可以解决一切粘性大,和水分大的物料的筛分。平面回转筛是引进国外技术开发的一款新型筛分设备。本机具有设计合理,结构简单,运行平稳,全封闭结构,无尘染,防堵孔,防粘网等优点。特别是对吸湿性强、粘性大易堵孔和粘网的物料更为明显。由于采用了平面回转运动原理,有效的降低了设备的动静比和基础动载,该设备采用平面回转筛上下振动网下有自动清理设备,较传统的直线筛而言提高了丝网是用寿命,噪音小、筛分面积大。将效率由原来的93-95提高到98.5,推广市场前景良好。平面回转筛广泛应用于食品加工,化工、耐火材料、建材等行业的筛分作业。
平面回转筛的工作原理主要是利用偏心机的运动来实现的,它的运动形状是匀速往复回旋运动,倾角一般为4-9度。并通过驱动箱传给筛机,物料在进料端为水平圆运动,在长度方向上逐渐变成椭圆运动,后在出料端变成近似往复直线运动。
平面回转筛特点
6f彩票 物料通过进料口进入筛体后,在振动力的作用下,能够较均匀地分布在平面回转筛的筛面上,并且在料层下面粒度较小的物料迅可以通过筛网,而粒度较大物料在上面向出料端运动。
- 1.结构设计多样化,满足不同需求:有全封闭结构和敞开式结构两种形式,全封闭结构的优势是粉尘不飞扬,环保节能,运行的声音也小;敞开式结构主要适合颗粒度较大物料,它对于筛分物料的投放比较容易掌控和操作。
- 2.筛网利用率高,筛分效果好,不破坏物料的原有结构。
- 3.处理能力大,易用于流水线生产配套。
- 4.换筛网工序简单,使用方便,运转平衡。
- 5.无污染,噪音低。
平面回转筛结构图纸

- 1.出料机构的设计 出料箱由箱体、大杂出料斗、小杂出料斗、物料出料斗等组成,可以做到分级出料,提高了工作效率。
- 2.驱动装置的设计 振动电机安装子啊筛体前部,传动装置包括电动机、塔形V带轮、V1、进料装置的设计 进料装置由进料管、软布套筒和进料箱组成。进料管内设有锥形圆筒,可改变物料落点的位置,引导物料落入进料箱的中心部位;进料箱内固定有分料板,可以伸缩调节,以使物料沿筛面宽度均匀分布。
- 3.筛格的设计 筛格由筛格框架、筛板框架、筛板等组成。筛体内部分别安装上前筛格和后两个筛格,大于筛板上孔尺寸的物料流在筛格上,而小于筛孔尺寸的物料则通过筛孔到达筛格下面,提高了物料筛分精度。
- 胶带及两块扇形偏重等组成。可以通过改变V带在塔轮上的位置可以改变筛体的转速。调节偏心块改变激振力。
- 4.筛体的设计 筛体由钢板焊接及螺栓连接而成,内装有两层抽屉式筛格,筛面采用橡皮球清理,既能够做到分级筛料和储存,同时还能够清理筛网,减少堵塞。
平面回转筛适用范围:

平面回转筛在食品,化工,矿物,塑料,回收等行业都有广泛应用。典型应用如:复合肥筛分、粮食筛分、硅合金筛分、尿素筛分,磷酸二铵筛分、木片筛分、纯碱筛分、芒硝筛分、石墨筛分、PVC成品粉末筛分、碳化硅筛分、磨料筛分、烟草筛分,茶叶筛分等。平面回转筛是一种替代传统筛分机的先进、高效筛选设备。
使用厂家须知
平面回转筛的操作细节
我们的平面回转筛分设备应有稳定的基础。操作和安装是有着密切关系的。
(1) 平面回转筛出厂前已将筛网装妥,使用过程中的平面回转筛筛网更换可自己更换。
(2) 平面回转筛开机前,应先检查平面回转筛各压紧螺栓的紧固程度,及平面回转筛各料口的位置是否与接料器对正,并观察振动电机是否能正常转动及弹簧受力有无阻碍,检查各层筛网是否压紧。
(3) 当平面回转筛接入电气控制盘之前,应首先对电气控制盘进行检查。线路接通后观察振动电机旋转方向是否是顺时针方向, (备注:否则应改变相序)运转是否正常,有无异噪声。
(6f彩票4) 调节振动电机上下偏心块的相位角,以适应各种物料筛分情况。
平面回转筛产品照片




扫一扫